Rif: Rustico Caucana
SANTA CROCE CAMERINA
RAGUSA
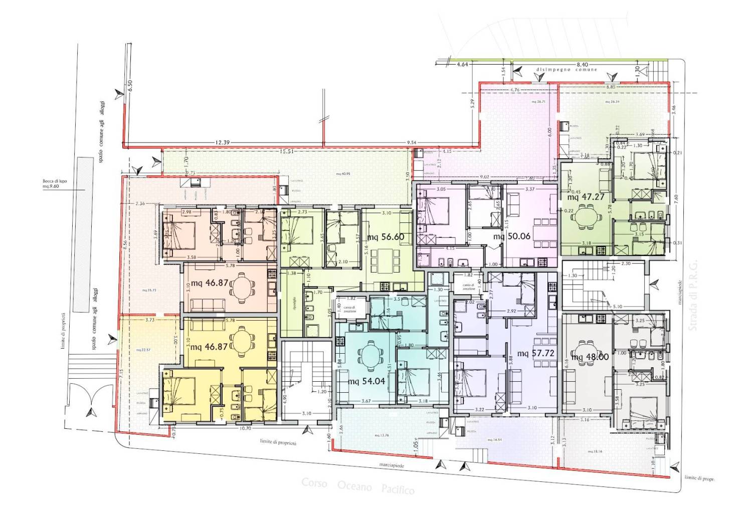
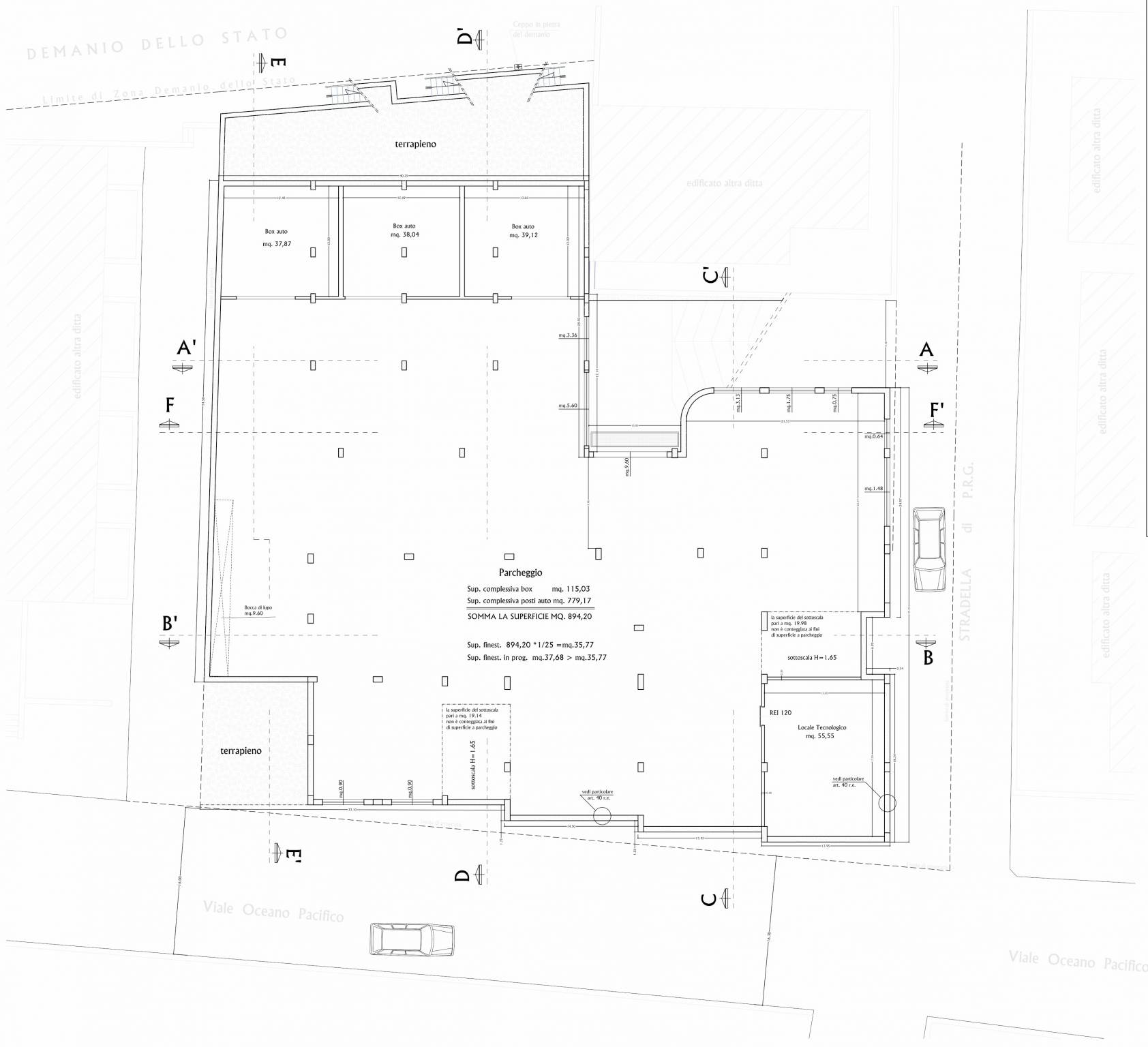
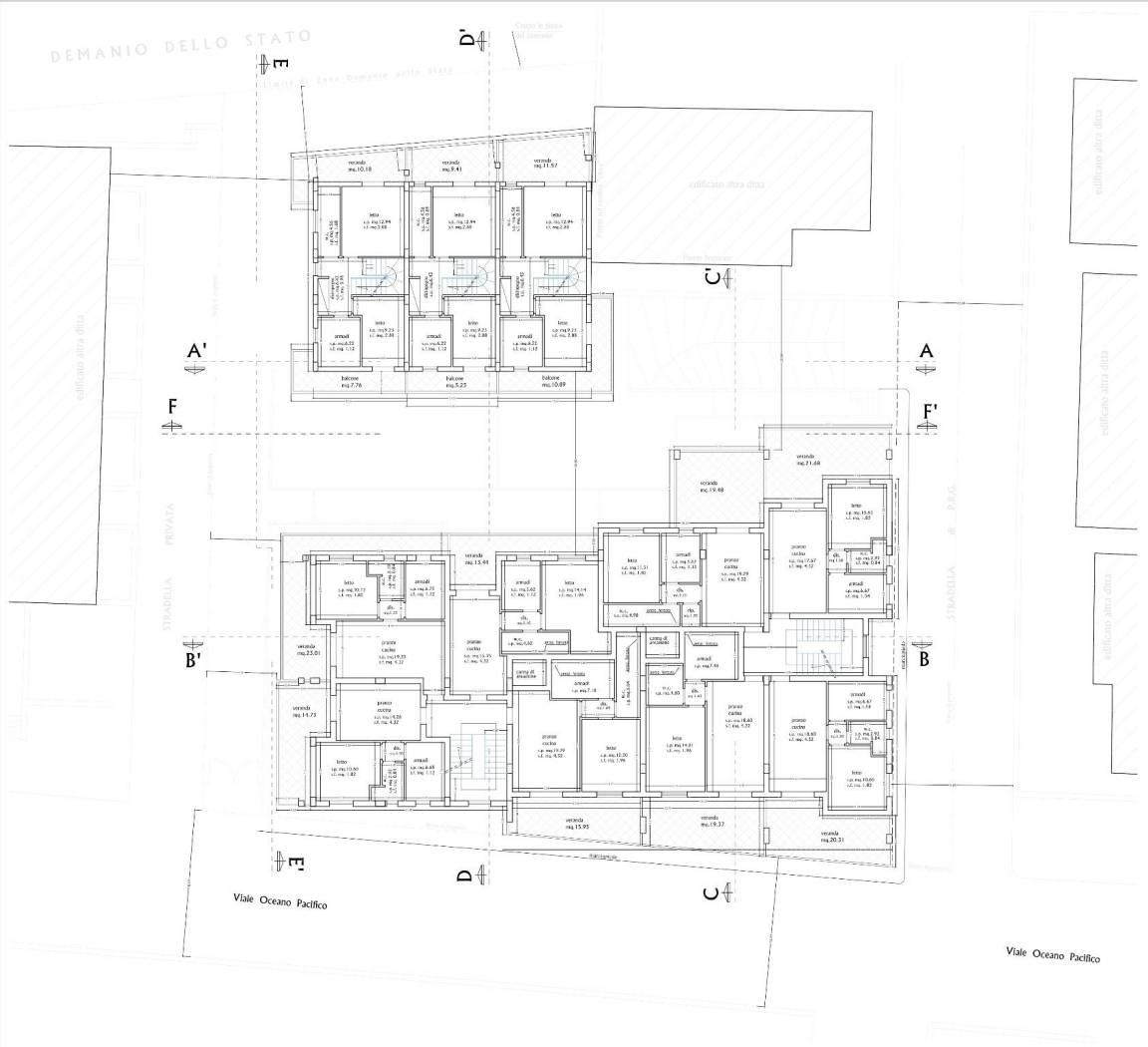
Caucana - Rustico Edificato sul Mare di 420 MQ a Piano Terra (8 alloggi), 420 MQ a Primo Piano (8 alloggi), 420 MQ al Secondo Piano Mansarda (5 alloggi), 500 MQ a Piano Interrato (Garage) + Blocco fronte Mare di 300 MQ su due livelli (3 villette da 50 MQ a Piano) - Lotto di Terreno 1.600 MQ - tra Marina di Ragusa e Punta Secca
Consistenze
| Descrizione | Superficie | Sup. comm. |
|---|---|---|
| Principali | ||
| Immobile - piano terra | 420 Mq | 420 Mqc |
| Immobile - 1° piano | 420 Mq | 420 Mqc |
| Mansarda - 2° piano | 420 Mq | 420 Mqc |
| Box/Garage - piano interrato | 500 Mq | 250 Mqc |
| Terreno - piano terra | 1.600 Mq | 160 Mqc |
| Immobile - piano terra | 300 Mq | 300 Mqc |
| Totale | 1.970 Mqc | |










