Rif: Velavevodetto
RAGUSA
RAGUSA - zona Santa Barbara - Gesuiti
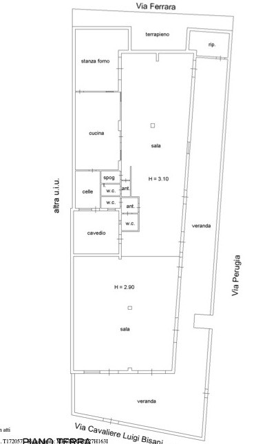
** Locale in Vendita: Un'Occasione Unica Fronte Mare! ** Scopri questo straordinario locale commerciale di 350 metri quadrati, situato in una posizione esclusiva fronte mare. Con 120 metri quadrati di verande esterne, offre un ambiente perfetto per ristoranti, bar o pizzerie, dove i clienti possono godere di una vista mozzafiato mentre assaporano le delizie culinarie. La luminosità naturale e l'esposizione al sud e all'est contribuiscono a creare un'atmosfera accogliente e invitante.
Il locale si sviluppa su un unico piano e dispone di 4 bagni, alcuni dei quali sono adattati per persone con disabilità, garantendo così l'accessibilità a tutti. La sua posizione angolare e le due vetrine offrono un'ottima visibilità e opportunità di marketing per qualsiasi attività commerciale. Questo locale è pronto per essere trasformato nel tuo sogno imprenditoriale. Non perdere l'opportunità di questo spazio unico, ideale per chi desidera avviare un'attività in una delle zone più belle e richieste. Contattaci per maggiori informazioni e per organizzare una visita!
Il locale si sviluppa su un unico piano e dispone di 4 bagni, alcuni dei quali sono adattati per persone con disabilità, garantendo così l'accessibilità a tutti. La sua posizione angolare e le due vetrine offrono un'ottima visibilità e opportunità di marketing per qualsiasi attività commerciale. Questo locale è pronto per essere trasformato nel tuo sogno imprenditoriale. Non perdere l'opportunità di questo spazio unico, ideale per chi desidera avviare un'attività in una delle zone più belle e richieste. Contattaci per maggiori informazioni e per organizzare una visita!
Consistenze
| Descrizione | Superficie | Sup. comm. |
|---|---|---|
| Principali | ||
| Negozio - piano terra | 350 Mq | 350 Mqc |
| Esterno - piano terra | 120 Mq | 36 Mqc |
| Totale | 386 Mqc | |










