Rif: San Giacomo
RAGUSA
RAGUSA - zona Conservatore - San Giacomo
San Giacomo - Casa Indipendente di 195 Metri Quadri con Ampia area Esterna e Terreno di 480 MQ
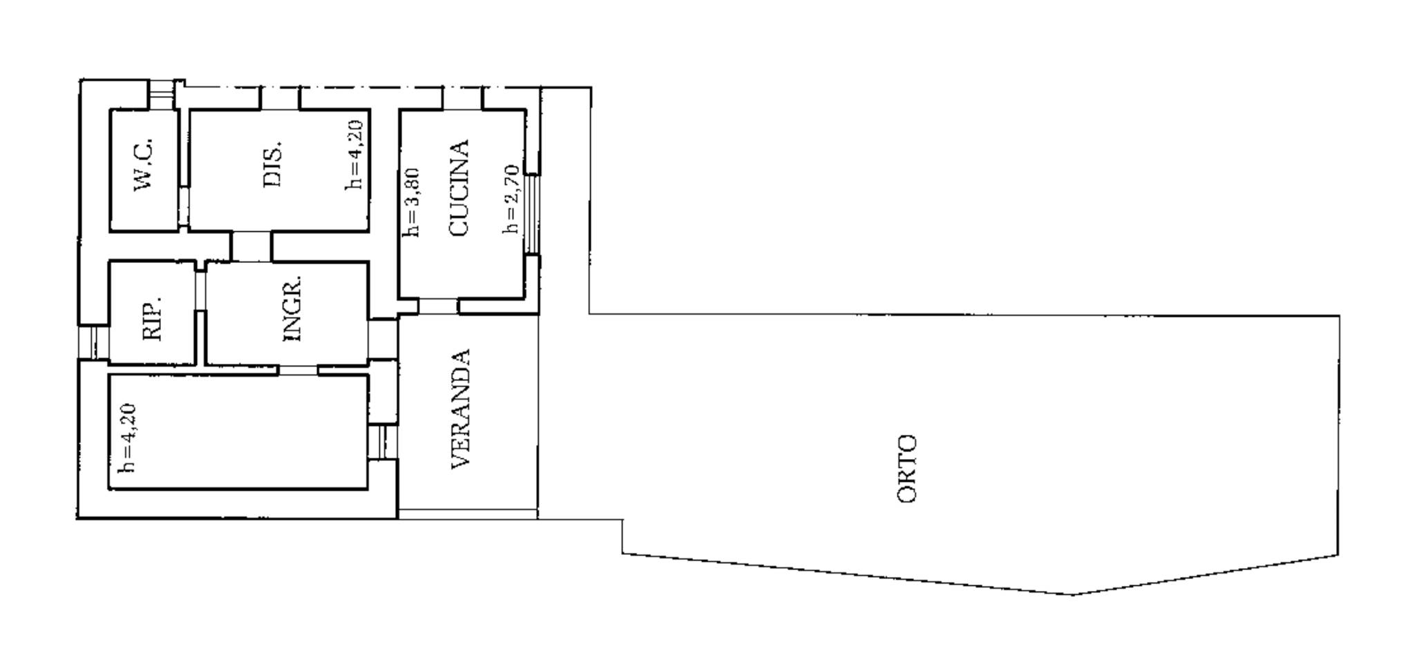
La Casa si compone quindi di un'abitazione in buono stato abitativo ricavata nei primi due corpi di fabbrica (in Rosso nella Mappa Allegata), di un corpo di fabbrica da ristrutturare (in Blu nella Mappa Allegata) e di una stanza con tetto rifatto(in Arancio nella Mappa Allegata), ampi spazi esterni e terreno. Bella la Vista Aperta sulla campagna.
La Proprietà si compone di 4 Corpi di fabbrica:
Uno Ristrutturato adibito ad Abitazione con Lastrico Solare e Ripostiglio al Primo Piano (in Rosso nella Mappa Allegata)
Uno Ristrutturato adibito ad Abitazione con Tetto (in Rosso nella Mappa Allegata)
Uno da ristrutturare (in Blu nella Mappa Allegata)
Uno con Tetto Rifatto dove è alloggiato il Forno (in Arancio nella Mappa Allegata)
Imposta Acquisto Prima Casa: Eu. 1.100,00 - Imposta Acquisto Seconda Casa: Eu. 2.855,62
IMU: Eu. 352,18
La Casa si compone quindi di un'abitazione in buono stato abitativo ricavata nei primi due corpi di fabbrica (in Rosso nella Mappa Allegata), di un corpo di fabbrica da ristrutturare (in Blu nella Mappa Allegata) e di una stanza con tetto rifatto(in Arancio nella Mappa Allegata), ampi spazi esterni e terreno. Bella la Vista Aperta sulla campagna.
La Proprietà si compone di 4 Corpi di fabbrica:
Uno Ristrutturato adibito ad Abitazione con Lastrico Solare e Ripostiglio al Primo Piano (in Rosso nella Mappa Allegata)
Uno Ristrutturato adibito ad Abitazione con Tetto (in Rosso nella Mappa Allegata)
Uno da ristrutturare (in Blu nella Mappa Allegata)
Uno con Tetto Rifatto dove è alloggiato il Forno (in Arancio nella Mappa Allegata)
Imposta Acquisto Prima Casa: Eu. 1.100,00 - Imposta Acquisto Seconda Casa: Eu. 2.855,62
IMU: Eu. 352,18
Consistenze
| Descrizione | Superficie | Sup. comm. |
|---|---|---|
| Principali | ||
| Immobile - piano terra | 68 Mq | 68 Mqc |
| Esterno - piano terra | 110 Mq | 11 Mqc |
| Immobile - piano terra | 60 Mq | 60 Mqc |
| Immobile - piano terra | 67 Mq | 67 Mqc |
| Esterno - piano terra | 40 Mq | 4 Mqc |
| Terreno - piano terra | 480 Mq | 48 Mqc |
| Totale | 258 Mqc | |










